Beschreibung
Softline 90 Revisionstür EI90 – Feuerschutz mit geprüfter Sicherheit (Art.-Nr. 21666)
Die Softline 90 Revisionstür (Art.-Nr. 21666) ist eine hochwertige Feuerschutz-Revisionstür mit 90 Minuten Feuerwiderstand (EI90). Sie wurde nach den europäischen Normen EN 1364-1 und EN 13501-2 geprüft und verfügt über die allgemeine bauaufsichtliche Zulassung (aBG) des DIBt Berlin, Nr. Z-6.55-2667. Diese Revisionstür ist ideal für den Einbau in Installationsschächte, Vorsatzschalen und Massivwände geeignet.
| Bezeichnung | Wert / Beschreibung |
|---|---|
| Artikelnummer | 21666 |
| Produktname | Softline 90 Revisionstür mit Brandschutz |
| Feuerwiderstand | EI90 – 90 Minuten |
| Zulassung / Genehmigung | DIBt Berlin Nr. Z-6.55-2667 |
| Prüfnorm | EN 1364-1 |
| Klassifizierungsnorm | EN 13501-2 |
| Rauchdichtheit | Sa4 / S200 (DIN EN 1634-3, in Anlehnung) |
| Luftdurchlässigkeit | Klasse 3 (DIN EN 12207, in Anlehnung) |
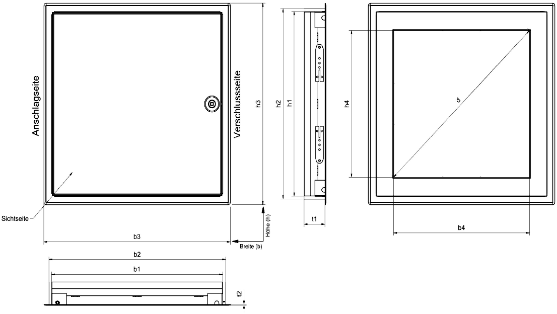
| Nennmaß | 600 × 800 mm |
| Bauöffnungsmaß (min.) | 600 × 800 mm |
| Bauöffnungsmaß (max.) | 612 × 812 mm |
| Rahmenaußenmaß | 635 × 835 mm |
| Lichte Öffnung | 517 × 717 mm |
| Durchgangsmaß | 883 mm |
| Einbautiefe | 52 mm |
| Anzahl Verschlüsse | 2 |
| Anschlag | DIN rechts oder DIN links |
| Material | Verzinktes, weiß pulverbeschichtetes Stahlblech |
| Montage | Mit festmontierten, drehbaren Mauerankern |
| Verschluss | Vierkantverschluss mit Schlüssel |
| Optionale Ausführungen | Sondergrößen, RAL-Sonderfarben, Zylinderschloss auf Anfrage |
Durch ihre geprüfte Rauchdichtheit (Sa4/S200) und Luftdurchlässigkeit Klasse 3 bietet die Softline 90 besonders hohen Sicherheitsstandard im Bereich Brandschutz und Rauchschutz. Der stabile Stahlrahmen und das Türblatt bestehen aus verzinktem, weiß pulverbeschichtetem Stahlblech, was langlebigen Korrosionsschutz und eine saubere Optik garantiert.
Die Tür ist mit festmontierten, drehbaren Mauerankern ausgestattet, was eine einfache und sichere Montage ermöglicht. Der Vierkantverschluss mit Schlüssel sorgt für zuverlässige Verriegelung. Der Türanschlag kann wahlweise DIN rechts oder DIN links ausgeführt werden.
Auf Anfrage sind Sondergrößen in 5-cm-Schritten, Zylinderschlösser sowie RAL-Sonderfarben erhältlich – für maximale Flexibilität im Bauprojekt.
Hersteller
Upmann GmbH & Co. KG
Weidenweg 20
33397 Rietberg
E-Mail: upmann@upmann.eu